
101号室室内1

101号室室内2

101号室室内3

101号室室内4

101号室室内5

101号室室内6

101号室室内7

101号室室内8

101号室室内9

101号室室内10

104号室室内

外観

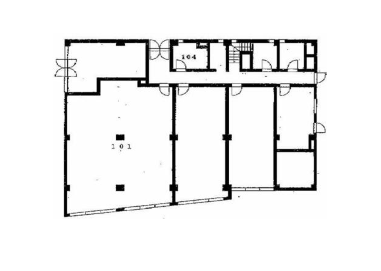
間取り図
代官山、渋谷、恵比寿から徒歩圏。八幡通りから少し入ったヴィンテージマンションの1階オフィス区画のご紹介です。
目次
物件について
最寄りは東横線の代官山駅。並木橋の交差点も近く、渋谷からも徒歩圏の落ち着いたエリアです。人気アパレルブランドの直営店やアートギャラリーが点在する中、今回は丁寧に管理された1985年築のヴィンテージマンションの1階をご紹介します。
ワンフロア4区画のうち、今回は146㎡と12㎡の大小2区画がセットになり募集中です。メインとなる146㎡の空間はほぼ四角の綺麗な形をしており、床と天井は現しになっています。
床は床材を剥がした跡が残り、天井はグレーに塗装されていました。天井の黒い配管も空間のアクセントになっていますね。天井は一番高いところで2.88mほどありました。
壁面はクロスが張っている部分と、石膏ボードが新規で取り付けられている部分の両方がありました。窓は入口から見た正面奥の一面のみです。
12㎡のお部屋は建物入口のすぐそばにあり、内装はオフィス仕様。荷物置きに使ったり、4人掛けのテーブルやソファを置いた打ち合わせスペースにちょうど良さそうな空間です。
トイレや給湯器が共用部分にあるというのも嬉しいポイント。取材時には改修工事中でしたので、入居時には新しい設備が使用可能です。
原則オフィス利用のみで店舗やペットが出入りするお仕事は不可です。以前はグッズ制作の会社がオフィス兼ショールームとして使用されていたとのこと、オフィス利用の延長線上のショールームは相談できそうです。
物件概要
| お問い合わせ番号 | SB-0031 |
| 賃料 | 850,000円(税込935,000) |
| 管理費・共益費 | 賃料に含む |
| 敷金・保証金 | 賃料×10ヶ月 |
| 礼金 | 賃料×1ヶ月(別途消費税) |
| 仲介手数料 | 賃料×1ヶ月(別途消費税) |
| 住所 | 渋谷区代官山町 |
| 築年 | 1985年 |
| 構造 | 鉄筋コンクリート造 |
| 所在階 | 1階 |
| 契約面積 | 101号室 146.32㎡(44.26坪) 104号室 12.22㎡(3.7坪) *一括貸し |
| 交通 | 東急東横線「代官山」駅 徒歩8分 |
| 契約形態 | 普通借家契約2年 |
| その他共有事項 | 更新料なし 火災保険加入必須 事務所兼ショールーム相談可能 店舗不可 トイレ、給湯室あり(共用部) ペット持ち込み不可 楽器演奏不可 敷地内駐車場あり(空き要確認) |
| 取引態様 | 媒介 |
| 情報更新日 | 2026年4月6日 |
| 次回更新予定日 | 2026年4月20日 |





