
室内1

室内2

室内3

室内4

室内5

室内6

室内7

キッチン

外観

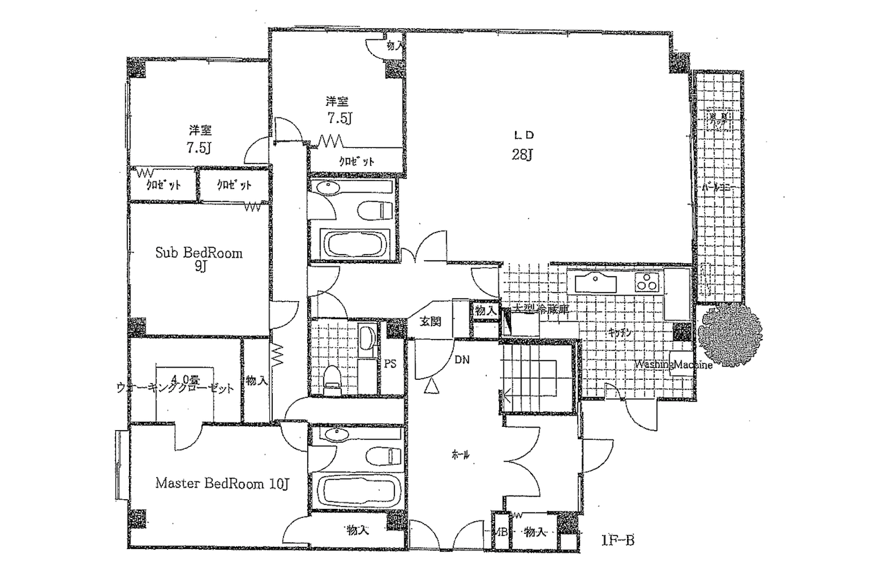
間取り図
世田谷区等々力エリア。静かな環境に佇む低層の大型SOHOをご紹介します。
目次
物件について
東急大井町線の尾山台駅から静かな住宅街を6分ほど。直線的な設計でタイル張りの外観が印象的な2階建の低層レジデンスの1階が今回のご紹介区画。ゆとりあるアプローチの先、ガラス張りの共用エントランスを抜けた右側のお部屋です。
契約面積は167㎡、間取りは4LDKと広々とした空間です。リビングルームは28帖かつほぼ正方形で、非常に使いやすい間取りです。天井高は一番高いところで約2.7mほどあります。オフィスとして考えるなら、メインの執務スペースといったところでしょうか。
洋室は7.5帖から10帖の4部屋。形もそれぞれ綺麗なため、レイアウトもしやすそうです。オフィス利用の場合は会議室や社長室などで使い分けたり、またSOHO利用の場合はベッドルームなどのプライベートなスペースとして利用することとなるでしょう。立派なキッチンもあるため、ぜひ使いこなしたいところです。
やや都心からは離れたエリアではありますが、目黒通りからも近く、地下には自走式の駐車場もあるため、お車での移動を想定しているにもおすすめしたい物件です。
物件概要
| お問い合わせ番号 | ST-0012 |
| 賃料 | 650,000円(税込715,000円) |
| 管理費・共益費 | 30,000円(税込33,000円) |
| 敷金・保証金 | 賃料×2ヶ月 |
| 礼金 | 賃料×2ヶ月(別途消費税) |
| 仲介手数料 | 賃料×1ヶ月(別途消費税) |
| 住所 | 世田谷区等々力4 |
| 築年 | 1989年 |
| 構造 | RC造 |
| 所在階 | 1階 |
| 契約面積 | 167.17㎡ |
| 交通 | 東急大井町線「尾山台」駅 徒歩6分 |
| 契約形態 | 普通借家契約2年 |
| その他共有事項 | 更新料1ヶ月(別途消費税) 火災保険加入必須 保証会社利用必須(初回保証料税込賃料合計1ヶ月分) 駐車場有(50,000税別/月) オートロック ICチップ付き防犯ドアロック エアコン メールボックス |
| 取引態様 | 媒介 |
| 情報更新日 | 2026年4月6日 |
| 次回更新予定日 | 2026年4月20日 |





