
眺望

室内1

室内2

室内3

室内4

眺望

外観

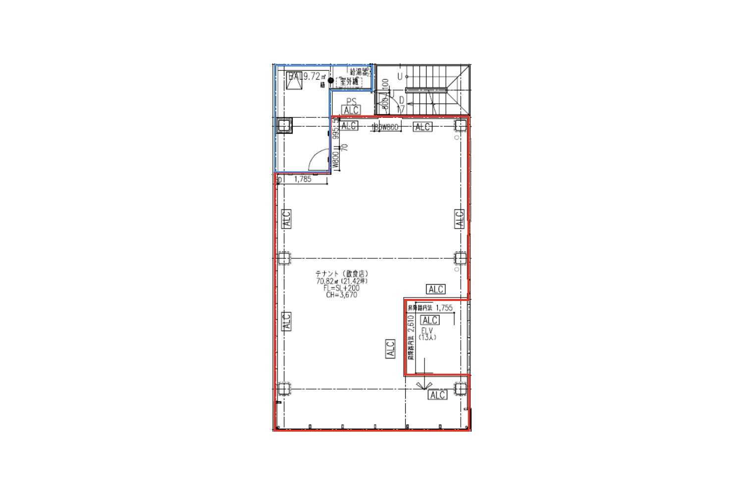
間取り図
門前仲町永代通り沿い。新たに誕生したデザインビルの最上階をご紹介します。
目次
物件について
最寄りは東西線の門前仲町駅。大手町駅からも3駅6分ほどで、歩こうと思えば東京駅までも3〜40分ほどで着くという立地です。富岡八幡宮や深川不動堂があり、周辺には昔から多くのお店が軒を連ねる歴史情緒あふれる街。その中に一際存在感のある10階建のビルが誕生しました。
永代通り沿いに立つこちらの建物は、ちょうど建物前面にアーケードがなく、建物真下からも大きな建物の全体を見ることができます。通りの周辺を見る限り、最も高い建物の一つです。店舗を中心とした幅広い業種を想定した建物ですが、この記事では最上階のスケルトン区画をご紹介します。
先ずエレベーターを降りて最初に目に入るのは一面の窓ガラス。南側に面した大きなガラス面は遠くまで見渡すことができ、大変気持ちがいいです。北側にはバルコニーも設置され、東京スカイツリーを望むこともできます。
スケルトンの室内は天井高が3.6mある大きな空間。面積は70㎡ほどで幅も広いため、レイアウトにはあまり困らなそうです。内装についてはこの見晴らし、開放感を活かした空間作りをされると良いのではないかと思いました。
さまざまな業態のイメージが湧きますが、東京駅からも近く、富岡八幡宮や下町の雰囲気が残る商店街などの魅力的なコンテンツを考慮すると、インバウンドも想定した業態も良いのではないでしょうか。
日本の食材や文化を伝えるコンセプトのレストランやバー関連のお店もおもしろそうですね。
物件概要
| お問い合わせ番号 | KT-0002 |
| 賃料 | 642,600円(税込706,860円) |
| 管理費・共益費 | 賃料に含む |
| 敷金・保証金 | 賃料×10ヶ月 |
| 礼金 | なし |
| 仲介手数料 | 賃料×1ヶ月(別途消費税) |
| 住所 | 江東区門前仲町2 |
| 築年 | 2025年 |
| 構造 | 鉄骨造 |
| 所在階 | 10階 |
| 契約面積 | 70.82㎡(21.42坪) |
| 交通 | 東京メトロ東西線「門前仲町」駅 徒歩2分(5番出口) |
| 契約形態 | 定期借家契約5年(相談可) |
| 用途 | 事務所、店舗 |
| その他共有事項 | 共用電気、共用水道代は面積按分にてご負担いただきます 保証会社加入必須 火災保険加入必須 産業廃棄物処理業者指定 一部ダクト配管実装区画あり スケルトン引渡し 再契約料1ヶ月分 内装監理費坪19,800円(税込) |
| 取引態様 | 媒介 |
| 情報更新日 | 2026年4月6日 |
| 次回更新予定日 | 2026年4月20日 |





