
4階室内1

4階室内2

4階室内3

4階室内4

4階室内5

4階室内6

4階室内7

4階テナント専用屋上テラス

3階室内1

3階室内2

3階室内3

3階室内4

3階室内5

3階バルコニー

3階バルコニーから並木橋交差点方面を望む

屋上共用テラス

外観

間取り図
渋谷駅周辺でも静かな新南口周辺エリア。2025年9月に完成したリノベーションオフィスをご紹介します。
目次
物件について
渋谷駅から渋谷ストリームを抜け、恵比寿方面へ歩くこと3分ほど。並木橋交差点よりも少し手前、渋谷川沿いにリノベーションオフィスが誕生しました。
建物は前面道路から奥に伸びる直方体のようなイメージ。リノベーションという言葉を使用するには非常に新しいと感じる、2001年築の建物です。ファサードは窓面が大きく直線的なデザインでシャープな印象を受けます。
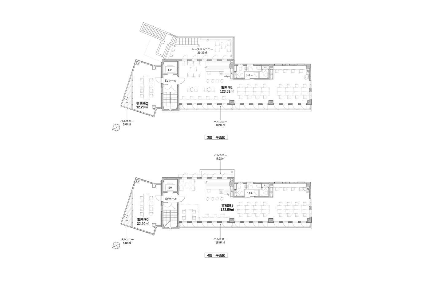
こちらの記事では3,4階123㎡、建物内で一番大きな2区画をご紹介します。
室内に入ると、左右に均等に配置された窓から柔らかい自然光が入ります。壁や天井は白。床材を剥がした跡が残る床面は、そのラフな雰囲気を生かすため、表面を均してクリア塗装で仕上げられています。奥まで真っ直ぐ伸びるダクトレールには大きめのスポットライトが取り付けられていました。ちなみに天井高は2.8mほどあります。
家具のサイズにもよりますが20名程度は余裕を持って使用ができそうです。
そしてオフィスでは非常に珍しい、大型のカウンターキッチンもこの空間の大きなの特徴の一つ。
普段使いはもちろんのこと、イベント時に活用すれば社内外の交流において良い効果がありそうですね。料理系のお仕事をされている方であれば、撮影もしやすいレイアウトではないかと思います。
3階と4階ではバルコニーについて少し違いが。4階は屋上共用テラスの奥に専用スペースが、また3階はお部屋に入った左側、キッチンの裏側に広々としたバルコニーがあります。3階のバルコニーは照明や電源もあり、お天気の良い日は外でお仕事をするのも気持ちよさそうです。
渋谷に抱く一般的なイメージとはかけ離れた、静かな場所に誕生したリノベーションオフィス。アクセスと落ち着いた環境両方を満たすことができる希少な物件ではないかと思います。基本的にはオフィス用途での募集ですが、アポイント制のショールームという使い方も良いかもしれません。
1階の店舗区画にはカフェやレストランがオープン予定とのこと。さらに期待が膨らみます。
物件概要
| お問い合わせ番号 | SB-0032 |
| 賃料 | 1,120,000円(税込1,232,000円) |
| 管理費・共益費 | 66,000円(税込72,600円) |
| 敷金・保証金 | 賃料×2ヶ月 |
| 礼金 | 賃料×1ヶ月(別途消費税) |
| 仲介手数料 | 賃料×1ヶ月(別途消費税) |
| 住所 | 渋谷区渋谷3 |
| 築年 | 2001年(2019年一部増築) |
| 構造 | 鉄筋コンクリート造・鉄骨造 |
| 所在階 | 3,4階 |
| 契約面積 | 123.59㎡(37.38坪) |
| 交通 | JR山手線「渋谷」駅 徒歩3分 |
| 契約形態 | 定期借家契約2年 |
| その他共有事項 | 再契約料新賃料 1ヶ月(別途消費税) 保証会社(貸主指定)利用必須(初回保証料:月額支払い総額の100%、更新料:年額10,000円〜) 火災保険加入必須 専有部及び共用部の水光熱費は管理会社からの請求によりお支払いいただきます |
| 取引態様 | 媒介 |
| 情報更新日 | 2026年4月6日 |
| 次回更新予定日 | 2026年4月20日 |





