
現状は機械式駐車場の設備があります

1階部分現状

1階ターンテーブル

地下1階

地下1階

地下1階

外観

地下1階引渡しイメージ(スケルトン)

1階部分使用方法イメージ

地下1階部分使用方法イメージ

地下1階部分使用方法イメージ

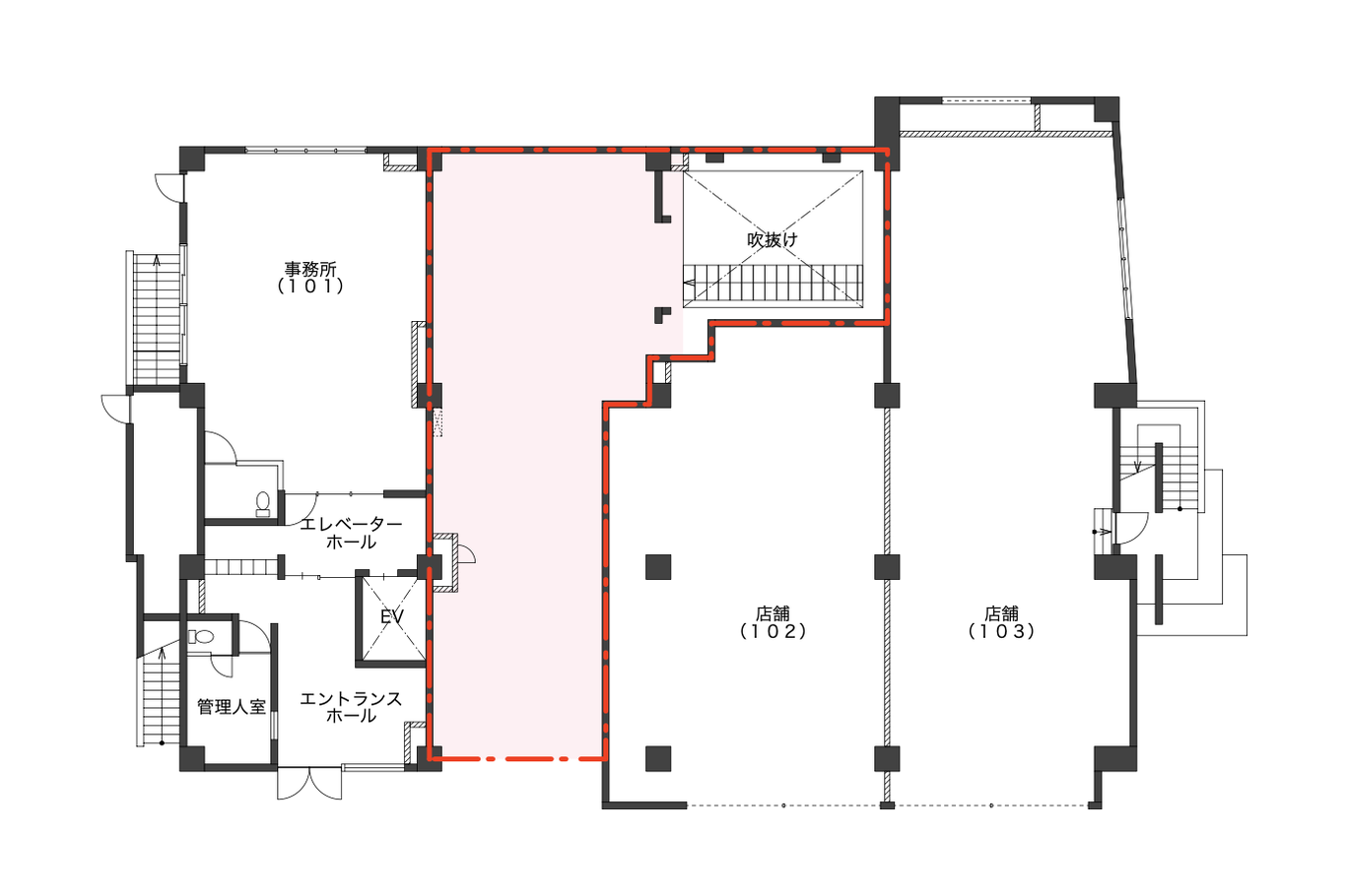
1階間取り図(赤枠内=募集区画)

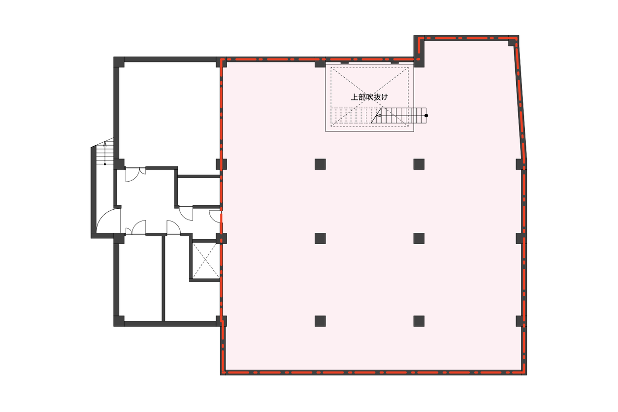
地下1階間取り図(赤枠内=募集区画)
東横線綱島駅そば。元機械式駐車場から大胆なコンバージョンを提案する非常に珍しい物件のご紹介です。
目次
物件について
※2026年4月末(予定)まで駐車場設備解体工事を実施します。地下に広がる大空間をご覧いただけるまで今しばらくお待ちください。
最寄りは東横線の綱島駅。駅周辺は、東横線沿線でも有数の規模の商店街があり、日中も多くの人が行き交います。加えて2023年には新綱島駅も開業し、新横浜駅までも1駅と、アクセスもさらに向上したことから、更なる発展が期待できる街です。
今回は綱島駅から徒歩2分ほどのマンション1階・地下1階部分で、かつて機械式駐車場として運営されていた場所を、新たな用途を想定して募集するという、大胆なプロジェクトをご紹介します。
空間は入出庫用のスペースとして使用していた1階の100㎡と、自動車が収まっていた地下1階部分の417㎡に大きく分かれます。1階部分の天井は2.6mほど。奥にはターンテーブルがあり、上部のトップライトからは自然光も入ります。地下1階部分はパレットやリフトが現状まだ残っています。通常は見ることのない景色ですね。メインスペースの天井高は3.1mほどあり、梁下は2.5m。リフト部分については床が少し下がっていることもあり、7mほどの高さがあります。
これら機械式駐車場の設備は入居者様決定後全て撤去し、空間はスケルトン状態、また1階と地下1階を結ぶ階段をご用意した上でのお引渡しを想定しています。
実際のお引渡し状態や、造作を加えた場合のイメージは、パースをご参考くださいませ。
音楽、アパレル、ゲーム、スポーツ、自動車関連のビジネスなど、大きな空間ということもあり想像が膨らみます。私たちもさまざまな可能性は想定していますが、ぜひ皆さまのアイディアもお聞かせください。内覧も可能です。
なお実際のお引渡しは、契約締結後スムーズに工事進んだ場合で6〜7ヶ月程度を想定しており、少しお待たせしてしまうことにはなってしまいます。その一方で、階段の位置や新たな開口を設けるかどうかなど、建物側の設計士さんとも丁寧にコミュニケーションをとりながら、素敵な空間作りを一緒に考えていければと思います。
物件概要
| お問い合わせ番号 | YK-0002 |
| 賃料 | 1,250,000円(税込1,375,000円) ※業態により条件変更の可能性あり |
| 管理費・共益費 | 賃料に含む |
| 敷金・保証金 | 相談(償却なし) |
| 礼金 | なし |
| 仲介手数料 | 賃料×1ヶ月(別途消費税) |
| 住所 | 横浜市港北区綱島西1-4-23 |
| 築年 | 1995年 |
| 構造 | 鉄筋コンクリート造 |
| 所在階 | 1階・B1階(一括) |
| 契約面積 | 517.18㎡(156.44坪)*1階部分:100.05㎡ B1階部分:417.13㎡ |
| 交通 | 東急東横線「綱島」駅 徒歩2分 東急新横浜線「新綱島」駅 徒歩4分 |
| 契約形態 | 定期借家契約5〜10年 |
| その他共有事項 | 飲食不可 天井高 1階:2,600mm 地下1階:3,080mm 吹抜け部分:約7m 保証会社利用相談 火災保険加入必須 スケルトン引き渡し予定(現況:機械式駐車場設備あり) 間取り図記載の階段は現状設置されていません 原則賃貸借契約締結後、関係者と打ち合わせの上、解体工事含むA工事(貸主側による工事)を開始予定 A工事はオフィス利用を想定した設計となります |
| 取引態様 | 専任媒介 |
| 情報更新日 | 2026年4月6日 |
| 次回更新予定日 | 2026年4月20日 |





