
室内1

室内2

室内3

室内4

室内5

水回り1

水回り2

エントランス

外観

近くの外苑いちょう並木

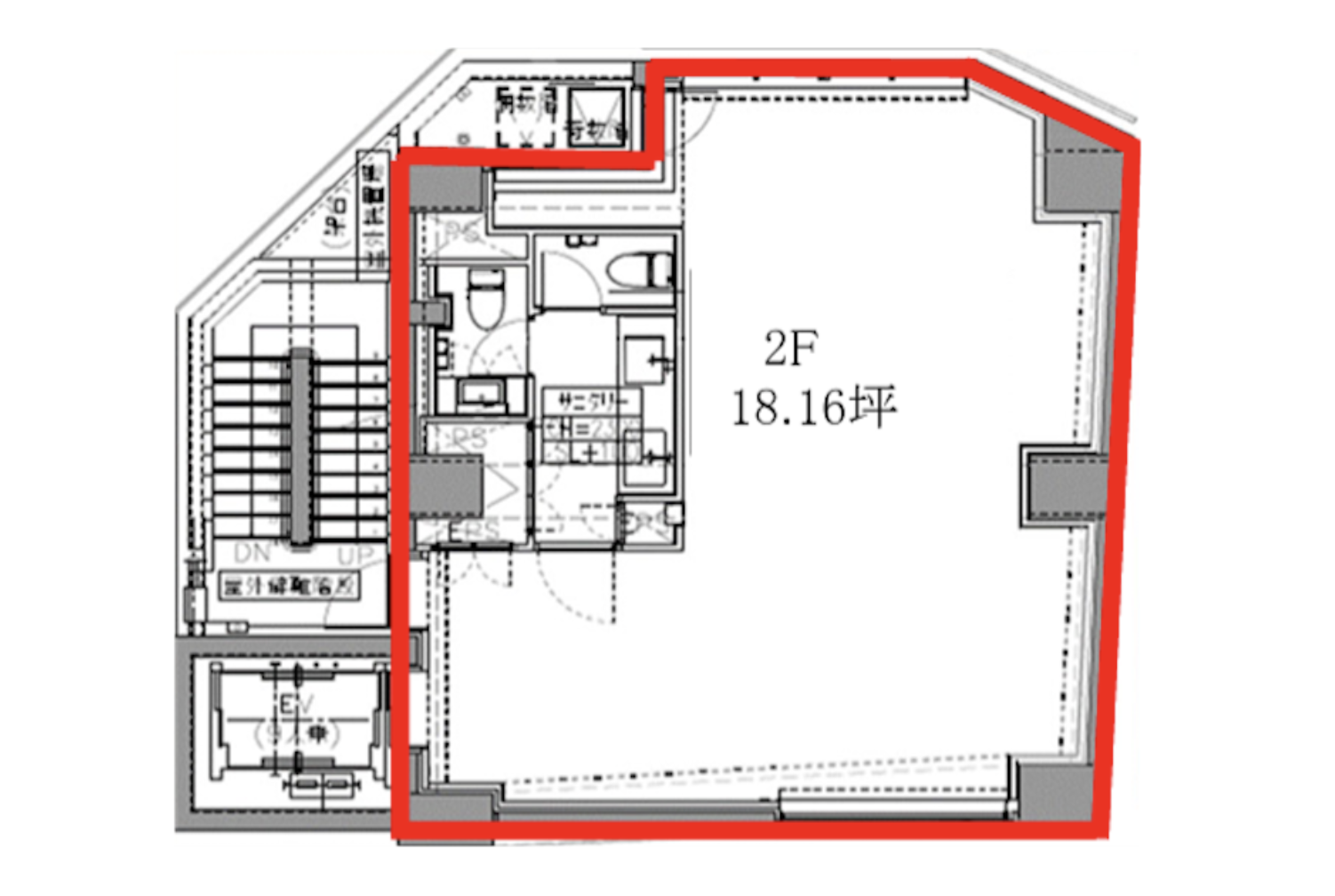
間取り図
明治神宮外苑いちょう並木そば。天井高3.3mの開放的なオフィス空間をご紹介します。
目次
物件について
銀座線の外苑前駅と青山一丁目駅のちょうど中間あたり、青山通りから一本入った静かなエリアに今回ご紹介するビルが建っています。2019年築の綺麗なビルは、白と黒の異なるデザインのルーバーが印象的です。
今回ご紹介するのは2階部分。最初に目に入るのは高い天井部分。一番高いところで3.3mあり、18坪のオフィスとしては非常に珍しい設計かと思います。1フロア1テナントのため窓面も多く、開放的な空間が広がります。OAフロアの上にタイルカーペット仕上げ。天井はRC物件らしく、綺麗なコンクリートが剥き出しとなっています。
また広々とした水回りエリアも、このサイズのオフィスとしては希少です。流し台と洗面台が並び、トイレも男女別で使用可能。メインスペースから扉で隔てられている点も好印象です。
黒のダクトレールが空間を程よく引き締めていることもあり、クリエイティブ系の業種だけでなく、士業のような堅い業種まで、幅広い業種にマッチするのではないでしょうか。
業態によっては店舗利用も相談とのこと、サロン系、クリニック系はイメージがしやすいです。
近くには外苑いちょう並木があります。紅葉の時期のみならず、散歩するだけでもリフレッシュできる素敵なエリアです。
物件概要
| お問い合わせ番号 | MN-0020 |
| 賃料 | 472,160円(税込519,376円) |
| 管理費・共益費 | 賃料に含む |
| 敷金・保証金 | 事務所:賃料×6ヶ月 サービス店舗:賃料×8ヶ月 *解約時償却2ヶ月 |
| 礼金 | なし |
| 仲介手数料 | 賃料×1ヶ月(別途消費税) |
| 住所 | 港区南青山2 |
| 築年 | 2019年 |
| 構造 | 鉄筋コンクリート造 |
| 所在階 | 2階 |
| 契約面積 | 60.06㎡(18.16坪) |
| 交通 | 東京メトロ銀座線「外苑前」駅 徒歩4分 東京メトロ銀座線「青山一丁目」駅 徒歩6分 |
| 契約形態 | 普通借家契約3年 |
| その他共有事項 | 更新料新賃料1ヶ月分 保証会社利用必須 火災保険加入必須 解約予告6ヶ月前 短期解約違約金あり OAフロア(100mm) |
| 取引態様 | 媒介 |
| 情報更新日 | 2026年4月6日 |
| 次回更新予定日 | 2026年4月20日 |





