
5階室内1

5階室内2

5階室内3

5階室内4

5階玄関ギャラリー部分

5階玄関ギャラリー部分2

5階室内5

5階キッチン

5階洗面台

6階室内1

6階室内2

6階室内3

6階室内4

6階室内5

6階室内6

6階玄関

6階収納

建物エントランス

外観

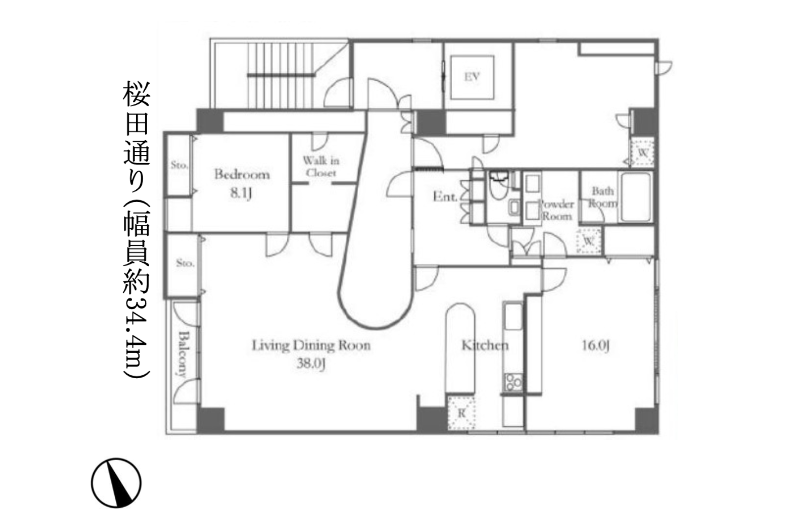
5階間取り図

6階間取り図
港区高輪エリア。住宅でもオフィスでも利用可能な、天井高最大3mの大型リノベーション空間のご紹介です。
目次
物件について
※現在は5階のみ募集中です。
桜田通り沿いに建つ、チャコールグレーの重厚感ある外観のオフィスビル。最寄りは浅草線の高輪台駅ですが、白金台駅、高輪ゲートウェイ駅からも徒歩圏という場所です。
2025年、5階と6階のワンフロアおよそ170㎡が、スケルトンからフルリノベーションされました。住宅仕様ではあるものの、オフィスとしても利用可能な、広々とした空間をご紹介します。
5階はエントランスから大きなインパクトのある空間が現れ、思わず立ち止まってしまいます。真っ白な壁は奥が曲面となり、包み込まれるような感覚です。エントランスとギャラリースペースを兼ねた空間とのこと、照明も壁面に飾ったアートへ光を当てることができる設計となっています。
お部屋の奥へ進むとリビングスペースに加え、3つのお部屋があるプラン。全体的に白やベージュの部材が多く、静かで清潔感がある印象です。天井高は最大で3.1mほど。キッチンや洗面台などの設備から広々とした収納部分まで、非常に贅沢な造りとなっています。
6階部分は濃い色のフローリングを採用し、より暖かみのある空間です。ブラックのダクトレールが空間を引き締め、シルバーのキッチンの天板が大きなアクセントとなっています。
5階と異なり、リビングスペースと隣の部屋を仕切る引き戸を開けることで、広々としたワンルームとしても使用することが可能です。窓面からの視界が開けていることもあり、さらに気持ちの良い、開放的な空間が誕生します。
それぞれ内装のテイストは異なるものの、天井をコンクリート剥き出したり、ギャラリースペースのような遊び心のある空間を作ったりと、最新の分譲マンションとはまた異なる、リノベーションらしい表現で私たちを楽しませてくれるという点は共通していると感じました。
さて冒頭でも申し上げたように、この空間は住宅としてはもちろんのこと、オフィスとしても利用可能です。
前者の場合は、タワーマンションや低層ハイグレードレジデンスとは異なる面白い空間を求めている方へ、後者の場合は、アットホームな雰囲気にカフェやギャラリーのようなテイストを加えたような、出社したくなる場所を求めている方へ、ぜひご紹介したいです。
物件概要
| お問い合わせ番号 | MN-0019 |
| 賃料 | 5階 1,250,000円(税込1,375,000円) 6階 募集終了 ※住宅利用の場合は非課税 |
| 管理費・共益費 | 5階 100,000円(税込110,000円) 6階 募集終了 ※住宅利用の場合は非課税 |
| 敷金・保証金 | 賃料×2ヶ月 ※事務所利用時は積み増しの可能性あり |
| 礼金 | 賃料×1ヶ月(別途消費税) |
| 仲介手数料 | 賃料×1ヶ月(別途消費税) |
| 住所 | 港区高輪3 |
| 築年 | 1993年 |
| 構造 | 鉄骨鉄筋コンクリート造 |
| 所在階 | 5,6階 |
| 契約面積 | 5階 167.67㎡(50.72坪) 6階 168.57㎡(50.99坪) |
| 交通 | 都営浅草線「高輪台」駅 徒歩6分 東京メトロ南北線「白金台」駅 徒歩12分 JR山手線「高輪ゲートウェイ」駅 徒歩15分 |
| 契約形態 | 定期借家契約5年 |
| その他共有事項 | 保証会社利用必須 火災保険加入必須 ペット飼育時敷金償却1ヶ月 エアコン分解洗浄費用賃借人負担 退去時室内清掃費用1,320円(税込)/㎡ 天井エアコン洗浄費用27,500円(税込)/基 壁掛けエアコン洗浄費用19,800円(税込)/基 駐車場有2台(付属)※1台は1階機械式、1台は近隣平置き |
| 取引態様 | 媒介 |
| 情報更新日 | 2026年4月6日 |
| 次回更新予定日 | 2026年4月20日 |





