
1階

1階

1階

2階

2階

2階

屋上

屋上

階段

屋上からの眺望

外観

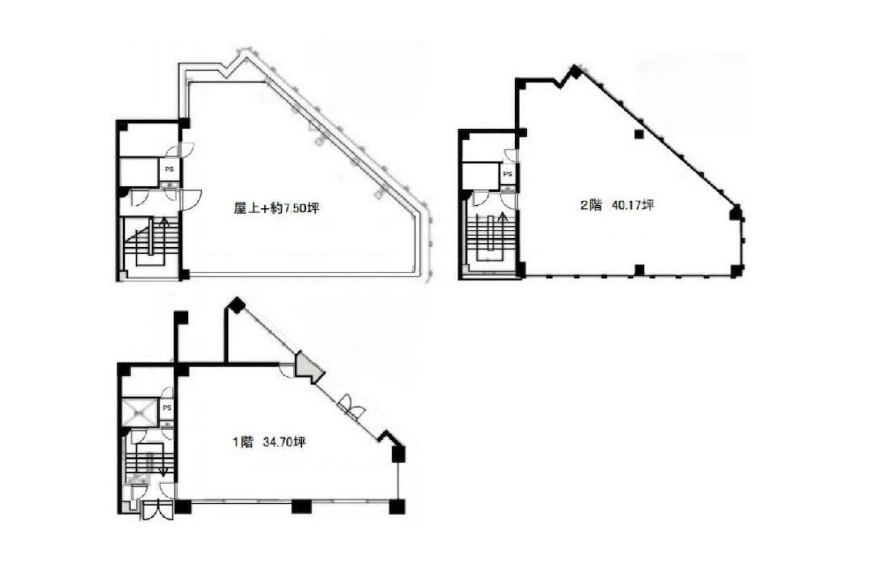
間取り図
東京イーストサイド。東日本橋駅そばに建つ、元文房具店の一棟ビルをご紹介します。
目次
物件について
東日本橋駅から徒歩1分。東日本橋の交差点に面した1977年築のビルは、縦のラインが強調された、端正でモダンな外観。大きな交差点に面している建物としては小ぶりですが、存在感十分です。
最初は金融機関の支店かと思いましたが、かつてはおよそ60年文房具店が営まれていたそうです。街の変化を見守り続けてきた建物の歴史にも興味が湧いてきます。
およそ35坪の1階は天井高は最大で3.8mほど。形は三角形に近いですが広々とした印象を受けます。交差点側を含め、三面に窓があるため、開放感も十分です。
2階は1階より少し広く40坪の空間。1階とは窓の形も異なり、また街路樹がちょうど視界に入ることから、1階とはまた違った表情です。天井は1階ほどではありませんが、3mは確保されているため低くは感じませんでした。
広々とした屋上が使用できるのも、このビルの大きな特徴です。大きな交差点に面していることで視界も開けていることや、低層ビルの屋上だからか、何とも言えない居心地の良さを感じます。ぜひ有効活用していただきたいです。
室内はフルスケルトンのため、内装工事は時間、費用ともにそれなりにかかりますが、自由に空間を作り込みたい方には非常に素敵な空間だと思いました。
家具やアパレルのお店、カフェも良さそうです。重飲食は要相談とのことですが、用途についてはぜひお気軽にお問い合わせくださいませ。
物件概要
| お問い合わせ番号 | CH-0003 |
| 賃料 | |
| 管理費・共益費 | |
| 敷金・保証金 | |
| 礼金 | |
| 仲介手数料 | 賃料×1ヶ月(別途消費税) |
| 住所 | 中央区東日本橋2 |
| 築年 | 1977年 |
| 構造 | 鉄骨鉄筋コンクリート造・鉄骨造 |
| 所在階 | 1〜3階(+屋上)*一棟 |
| 契約面積 | 272.31㎡(82.37坪) |
| 交通 | 都営浅草線「東日本橋」駅 徒歩1分 |
| 契約形態 | 定期借家契約10年 |
| その他共有事項 | 保証会社利用相談 火災保険加入必須 スケルトン引渡し 天井高1階 3,800mm 2&3階 3,200mm 管理 借主自主管理 用途 飲食店舗、サービス店舗、事務所等*重飲食要相談 |
| 取引態様 | 媒介 |
| 情報更新日 | 2025年10月21日 |
| 次回更新予定日 | 未定 |





