
執務スペース

執務スペース2

執務スペース3

執務スペース4

会議室

リラックススペース

ルーフテラス

1階ラウンジ

外観

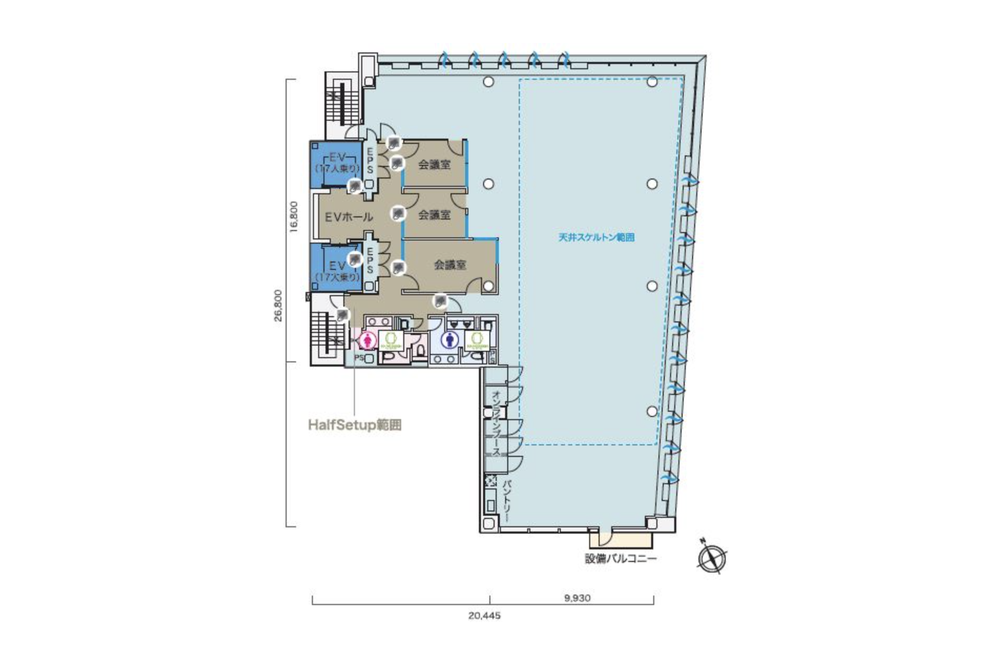
間取り図
銀座の中心エリアから少し東へ、落ち着いた街に誕生したセットアップオフィスのご紹介です。
目次
物件について
最寄りは有楽町線の新富町駅。すぐそばには築地駅もあり、東銀座駅からも歩いて10分前後という立地です。アドレスは銀座ではないものの、銀座Eastエリアとも言われるこの場所は、中央区役所はじめ、中央区の公的な施設が集まっていてアクセスにも非常に優れています。
2024年に建てられたこちらのビルは、黒を基調とし、大きなガラス面が印象的なシャープな外観。1階には食料品の購入に便利な大手スーパーが入居しています。
メインとなるフロアの広さは150坪。使い方にもよりますが50〜70名程度の使用を想定できる広さです。その中のひとつのフロアに、家具が一式設置されたフルセットアップオフィスが誕生しました。
採用されたブランドは「IKEA」。ホームインテリアの印象が強いですが、150坪のオフィスにIKEAの家具が並ぶというのは何とも壮観な景色です。さまざまな用途、場面を想定し、一般的なオフィスデスクやチェアのみならず、サイズの異なるテーブルやファミレスベンチなどが並べられています。
キッチンの近くのエリアは、一部床材を木目調のフロアタイルに切り替え、IKEAの得意分野とも言えるリビングルームのような空間が広がります。コーヒーを片手にリラックススペースとして重宝しそうですね。
会議室はサイズの異なる三部屋を造作済み。同じシリーズの他の物件と同様、動線やセキュリティにも非常に配慮された非常に使いやすい会議室です。
周辺と比べても高い建物のため、屋上のリフレッシュスペースからは気持ちの良い景色が広がります。喫煙スペースも確保されているので、愛煙家の方や、喫煙スペース確保に悩むオフィス移転の担当者様にとっても嬉しいポイントではないでしょうか。
その他の共用スペースとして、1階のラウンジにカウンター&ハイチェアが設置されており、また個室ブースも無料で使用できます。取材時も利用されている方がいて、使い勝手の良さそうな印象を受けました。
物件概要
| お問い合わせ番号 | CH-0002 |
| 賃料 | |
| 管理費・共益費 | |
| 敷金・保証金 | |
| 礼金 | |
| 仲介手数料 | 賃料×1ヶ月(別途消費税) |
| 住所 | 中央区築地2 |
| 築年 | 2024年 |
| 構造 | 鉄骨造 |
| 所在階 | 4階 |
| 契約面積 | 496.01㎡(150.04坪) |
| 交通 | 東京メトロ有楽町線「新富町」駅 徒歩2分 東京メトロ日比谷線「築地」駅 徒歩3分 |
| 契約形態 | 定期借家契約3〜5年 |
| その他共有事項 | セットアップオフィス 火災保険加入必須 個別空調 男女別トイレ 屋上リフレッシュスペース+喫煙スペース有 天井高 2,540mm(スケルトン部分3,235〜3,335mm) 駐車場あり(空き要確認) |
| 取引態様 | 媒介 |
| 情報更新日 | 2026年1月26日 |
| 次回更新予定日 | 未定 |





