
現状は機械式駐車場の設備があります

1階部分現状

1階ターンテーブル

地下1階

地下1階

地下1階

外観

地下1階引渡しイメージ(スケルトン)

1階部分使用方法イメージ

地下1階部分使用方法イメージ

地下1階部分使用方法イメージ

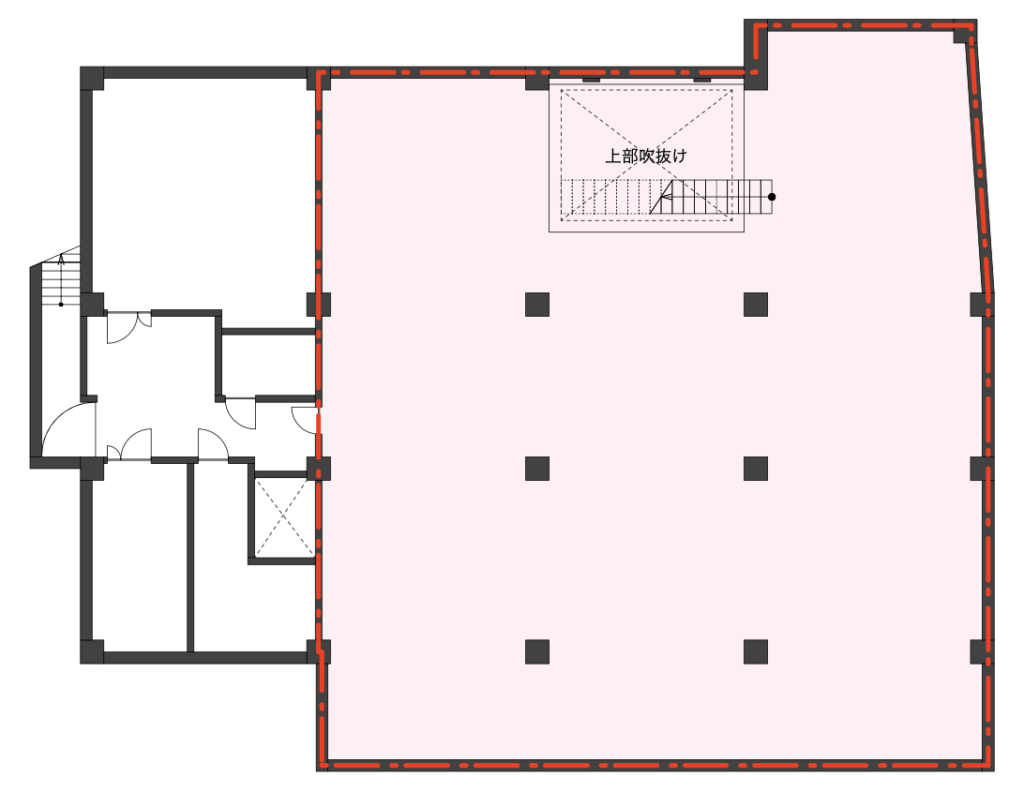
1階間取り図(赤枠内=募集区画)

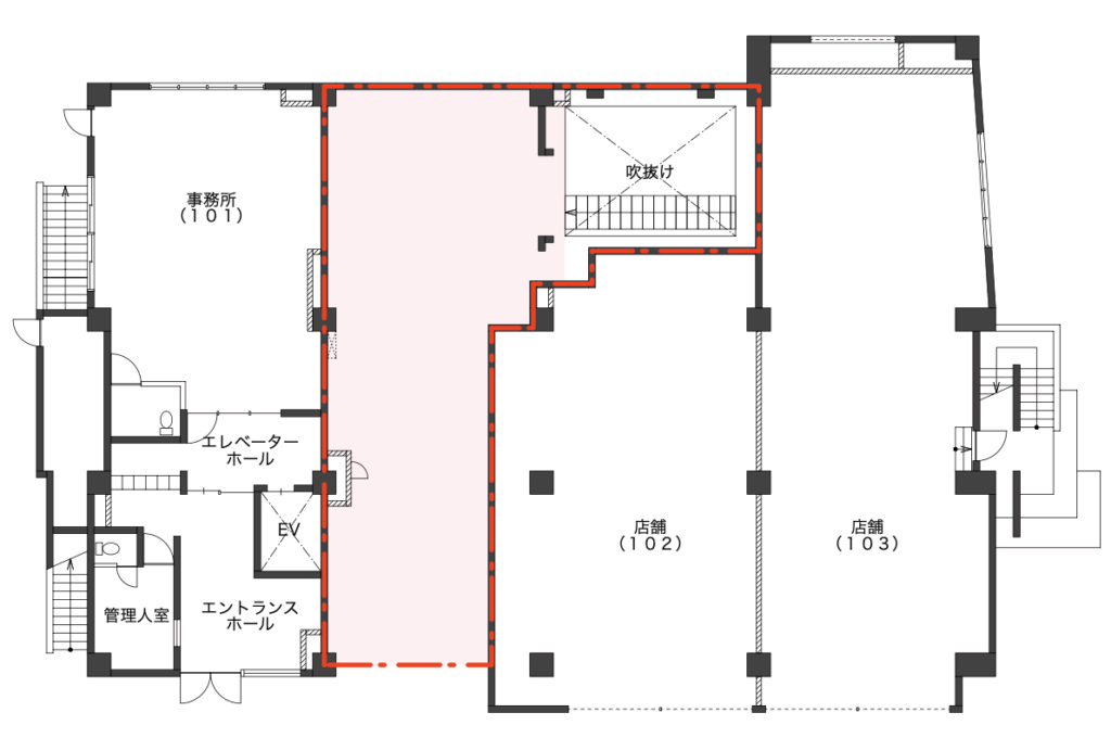
地下1階間取り図(赤枠内=募集区画)
東横線綱島駅そば。元機械式駐車場から大胆なコンバージョンを提案する非常に珍しい物件のご紹介です。
目次
物件について
最寄りは東横線の綱島駅。駅周辺は、東横線沿線でも有数の規模の商店街があり、日中も多くの人が行き交います。加えて2023年には新綱島駅も開業し、新横浜駅までも1駅と、アクセスもさらに向上したことから、更なる発展が期待できる街です。
今回は綱島駅から徒歩2分ほどのマンション1階・地下1階部分で、かつて機械式駐車場として運営されていた場所を、新たな用途を想定して募集するという、大胆なプロジェクトをご紹介します。
空間は入出庫用のスペースとして使用していた1階の100㎡と、自動車が収まっていた地下1階部分の417㎡に大きく分かれます。1階部分の天井は2.6mほど。奥にはターンテーブルがあり、上部のトップライトからは自然光も入ります。地下1階部分はパレットやリフトが現状まだ残っています。通常は見ることのない景色ですね。メインスペースの天井高は3.1mほどあり、梁下は2.5m。リフト部分については床が少し下がっていることもあり、7mほどの高さがあります。
これら機械式駐車場の設備は入居者様決定後全て撤去し、空間はスケルトン状態、また1階と地下1階を結ぶ階段をご用意した上でのお引渡しを想定しています。
実際のお引渡し状態や、造作を加えた場合のイメージは、パースをご参考くださいませ。
音楽、アパレル、ゲーム、スポーツ、自動車関連のビジネスなど、大きな空間ということもあり想像が膨らみます。私たちもさまざまな可能性は想定していますが、ぜひ皆さまのアイディアもお聞かせください。内覧も可能です。
なお実際のお引渡しは、契約締結後スムーズに工事進んだ場合で6〜7ヶ月程度を想定しており、少しお待たせしてしまうことにはなってしまいます。その一方で、階段の位置や新たな開口を設けるかどうかなど、建物側の設計士さんとも丁寧にコミュニケーションをとりながら、素敵な空間作りを一緒に考えていければと思います。
物件概要
| お問い合わせ番号 | YK-0002 |
| 賃料 | 1,250,000円(税込1,375,000円) ※業態により条件変更の可能性あり |
| 管理費・共益費 | 賃料に含む |
| 敷金・保証金 | 相談(償却なし) |
| 礼金 | なし |
| 仲介手数料 | 賃料×1ヶ月(別途消費税) |
| 住所 | 横浜市港北区綱島西1-4-23 |
| 築年 | 1995年 |
| 構造 | 鉄筋コンクリート造 |
| 所在階 | 1階・B1階(一括) |
| 契約面積 | 517.18㎡(156.44坪)*1階部分:100.05㎡ B1階部分:417.13㎡ |
| 交通 | 東急東横線「綱島」駅 徒歩2分 東急新横浜線「新綱島」駅 徒歩4分 |
| 契約形態 | 定期借家契約5〜10年 |
| その他共有事項 | 飲食不可 天井高 1階:2,600mm 地下1階:3,080mm 吹抜け部分:約7m 保証会社利用相談 火災保険加入必須 スケルトン引き渡し予定(現況:機械式駐車場設備あり) 間取り図記載の階段は現状設置されていません 原則賃貸借契約締結後、関係者と打ち合わせの上、解体工事含むA工事(貸主側による工事)を開始予定 A工事はオフィス利用を想定した設計となります |
| 取引態様 | 専任媒介 |
| 情報更新日 | 2026年1月12日 |
| 次回更新予定日 | 2026年1月26日 |





